Обяви 0 За нас Контакти
Продава ФИТНЕС ЗАЛА
град София, Лозенец
бул. Черни връх
1 500 000 €
2 933 745.00 лв.

(1 923 €, 3 761.06 лв./m2)
Не се начислява ДДС
Коригирана в 11:49 на 15 април, 2026 год.
Обявата е посетена 977 пъти.
Площ:
780 m2
Етаж:
Партер от 8
ТEЦ:
ДА
Строителство:
Тухла, Въведен в експлоатация 2005 г.

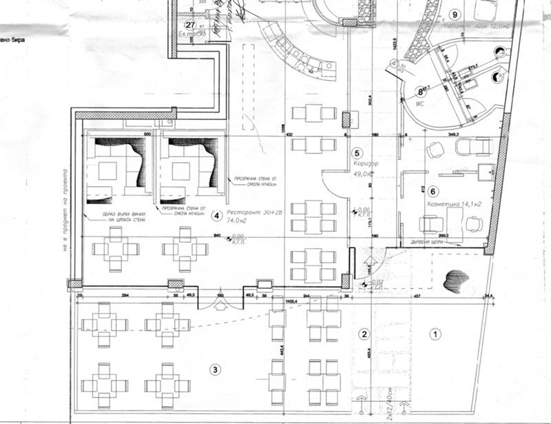
Описание на имота:


ПРОДАВА СПА ЦЕНТЪР, ФИТНЕС И РЕСТОРАНТ! ТОП ЛОКАЦИЯ до Бул. Черни връх и хотел МАРИНЕЛА, на 100м.от метростанция Джеймс Баучер.

Професионално оборудван ресторант, фитнес център, СПА и Релакс зона, както и допълнителни кабинети за професионални процедури.

Всички помещения са с мивки и плотове от стъклопласт и мебели от МДФ.В две от тях има джакузи с цветотерапия и душ кабини. Масажните кабинети са оборудвани със затоплящи кушетки, легло парна капсула, аюрведа, вулканични камъни и пиндесведи. Солариумът е вертикален Ergolinе.

Разпределение: подземно ниво: 3 паркоместа и 3 склада ( общо 110 кв.м.); партер (ЗП- 435 кв.м.): ресторант (90 кв.м. и 25 кв.м. кухня) с тераса (80 кв.м) , рецепция, 11 помещения / маникюр, педикюр, 2 масажни, козметика, офис, дамска съблекалня, мъжка съблекалня, VIP съблекалня, солариум и сауна /, релакс зона с басейн WC и първи етаж над партер (ЗП-153 кв.м.): -фитнес зала - голямо отворено пространство. Обща РЗП партер и първи етаж - 650 кв.м., плюс тераса -80 кв.м., 110 кв.м.- паркоместа и склад.

За повече информация и огледи Мариела Китанова 0888660255, оферта номер 9485!!!
Особености
Тухла
Асансьор
С гараж
С паркинг
Интернет връзка
С действащ бизнес
Обзаведен
Контрол на достъпа
За контакт:
0888660255
Брокер:
Мариела Китанова
02/9866668, 0886067888
Офис: 0 % ком. от продавача при ексклузивни договори
Още оферти от брокера: Продава | Дава под наем | Купува | Наема
Агенция:
ГЛОБЪЛ СЪРВИСИЗ ООД
0888660255, 0886067888 ГЛОБЪЛ СЪРВИСИЗ
ГЛОБЪЛ СЪРВИСИЗ ООД logo
Медал за прослужено време
В imot.bg от 2004 г.
globalservices.imot.bg
Адрес:
област София, гр. София, УЛ. СОФИЙСКИ ГЕРОЙ 3Б, ЕТ.3
http://www.gsestates.com
ИЗПРАТИ ЗАПИТВАНЕ
ИЗПРАТИ ЗАПИТВАНЕТО

Продава ФИТНЕС ЗАЛА
град София, Лозенец
бул. Черни връх
Обява: 1t161019697656180

1 500 000 €
2 933 745.00 лв.
(1 923 €, 3 761.06 лв./m2)

Не се начислява ДДС
ЗАПАЗИ ОБЯВАТА

Местоположение: град София, Лозенец, бул. Черни връх

Допълнителни данни за имотите в района и сравнение с други райони

Покажи

Период

и 5 месеца

* Средните цени са определени чрез медианна стойност